HOME
PORTFOLIO
RESUME
GRAPHICS
SMALL BUSINESS
HOME
PORTFOLIO
RESUME
GRAPHICS
SMALL BUSINESS
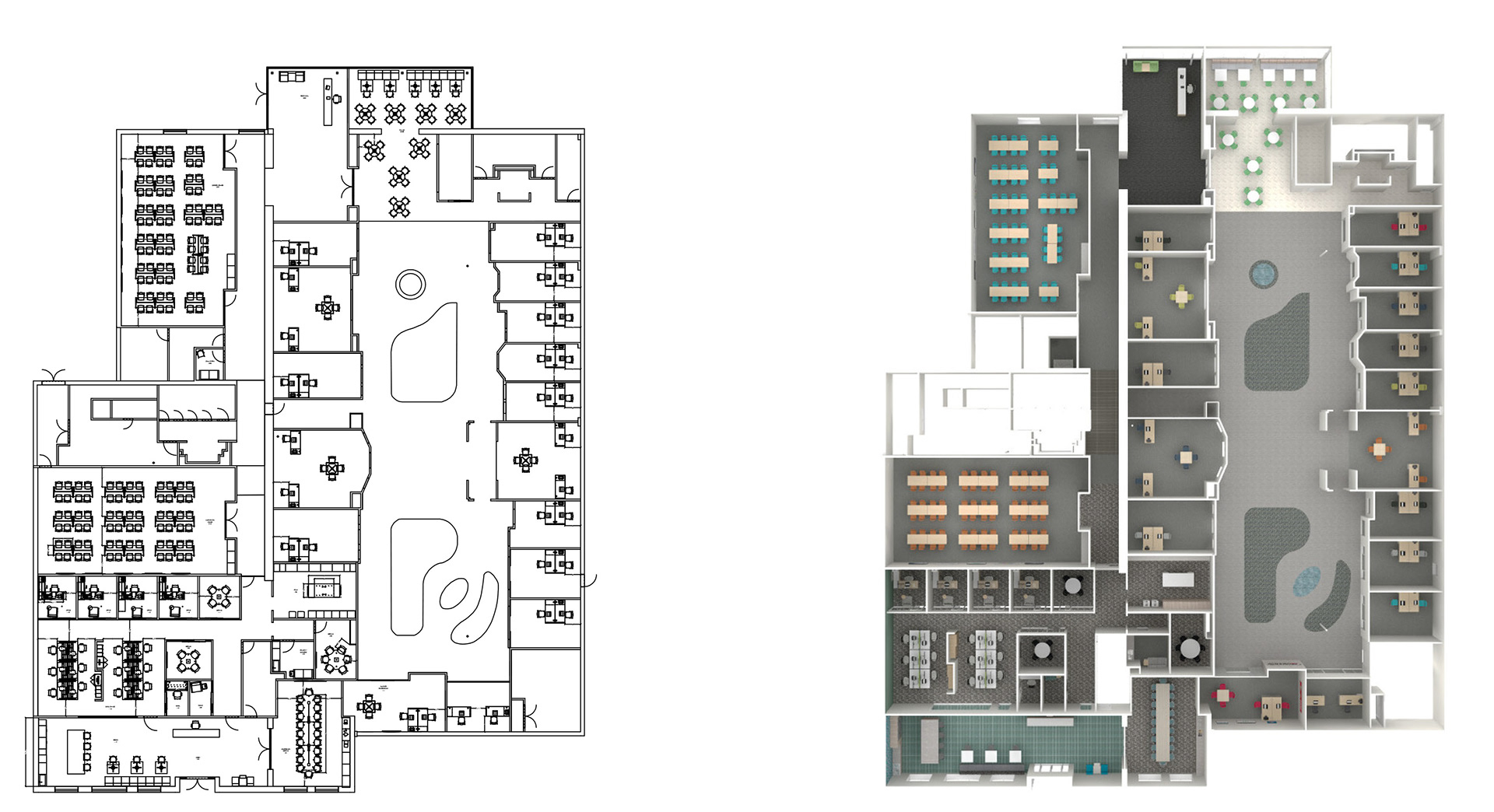
Project #3 - Junior Achievement
View Project in 3D
↑
Back to Top